您的位置:
首页
>
政务公开重点工作
>
重点领域信息公开
>
社会公益事业建设
>
自然资源
>
国土空间规划
>
详细规划
义务教育
政策文件
教育概况
招生管理
学生管理
重要政策执行情况
教育督导
校园安全
教师管理
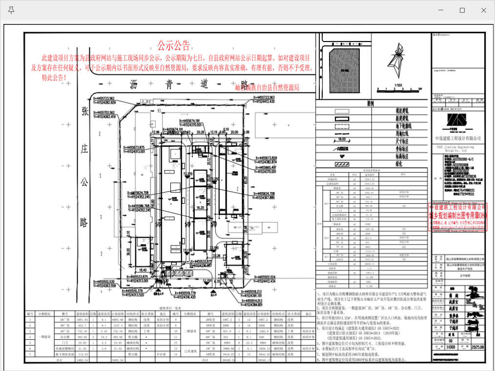
鞍山市鞍攀钢铁耐火材料有限公司年产2.5万吨耐火整体透气砖生产线项目规划设计及平面图
时间:2025-11-24 09:36
来源:县自然资源局
作者:王宏宇
点击:
次